2-к кв. Татарстан, Казань ул. Сибирский Тракт, 7/6 (57.2 м²)
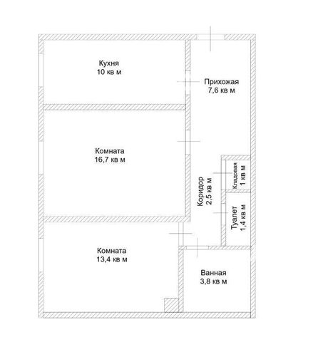
Продается просторная 2-комнатная квартира площадью 57.2 кв. м в сталинском доме 1953 года постройки. Квартира находится на 2 этаже 4-этажного дома, потолки высотой 3 метра. Это идеальное место для тех, кто ищет жилье с историей и атмосферой.
Квартира без ремонта, что дает возможность воплотить все ваши дизайнерские идеи и сделать ее именно такой, как вы мечтаете. Жилая площадь составляет 30.1 кв. м, а кухня - 10 кв. м, поэтому пространство позволяет удобно организовать быт. Окна выходят во двор, поэтому в квартире всегда тихо и спокойно. Имеется отдельный санузел.
Дом находится в хорошем состоянии и окружен всей необходимой инфраструктурой. В шаговой доступности школы, детские сады, клиники и магазины, поэтому ваша повседневная жизнь будет максимально комфортной. До метро можно добраться на автомобиле всего за 7 минут, что удобно для ежедневных поездок по городу.
Квартира продается без обременений, можно оформить покупку в ипотеку. Документы готовы к сделке, собственник один, что упрощает процесс покупки. Это отличная возможность приобрести недвижимость в престижном районе по разумной цене.
Ждем вас на просмотр! Звоните, чтобы договориться о встрече и задать все интересующие вопросы. Не упустите шанс стать обладателем этой уникальной квартиры!
Особенности
Другие 2-х комнатные квартиры
Последние добавленные апартаменты
2-комнатная квартира: Казань, улица Архитектора Гайнутдинова, 26к3 (52 м²)
О нас говорят
Хорошая услуга «Личный помощник». За вами закрепляют менеджера, который подбирает для вас варианты, помогает с подписанием договора и проверкой квартиры. Константин оперативно отвечал на наши вопросы и подстраивался под возникающие в ходе поиска требования.
Ins Fairy
Нашел себе отличную квартиру в Мск на Локалс. В этот раз пользовался услугой Личный помощник; Каждый день мне присылали варианты и по моим ответам уточняли мои критерии. В итоге выбрали прямо то, что мне было надо!
Ilya Malov
Отличный сервис! Нужный вариант подобрали уже на следующий день после обращения. Документы с арендодателем я подписала в конце той же недели и сразу переехала. Квартира после ремонта, все новое, я — первый арендатор, до метро 15 минут пешком. Это потрясающе!
Maria Levkina
Поиски квартиры заняли ровно неделю, Андрей проверял все варианты и составлял подробное описание. Так же оказал помощь при подписании договора. И вот теперь, я снимаю квартиру без комиссии, от собственника, с хорошим ремонтом, в новом доме по приемлемой цене.
Dmitry Kovtun
Клиентоориентированность — на высшем уровне. И форма связи любая.. мне было удобно общаться через почту — не проблема: в будни и даже в выходные, и днем и ночью — постоянно на связи) В какой-то момент даже подумала, что личный помощник никогда не отдыхает))
Teresa Olehnovich
Услуга «Личный помощник» — это не только дешевле, чем платить деньги каким-то непонятным посредникам или риэлторам, но и гарантированная ежедневная консультация от грамотного специалиста. Одним словом, всё очень понравилось.
Алина Василевская
Моя оценка 5! Нашли с личным помощником то, что нужно!! Удобно и безопасно. Отличный, проверенный сайт! Спасибо, Локалс!
Еленка Потапова
Искал с помощью услуги «Личный помощник». Сервис справился с поставленной перед ним задачей — найти мне жильё в короткие сроки (дедлайн 1,5 недели). Спасибо!
Dimas
У меня только положительные впечатления остались. Мне присылал варианты каждый день, иногда даже дважды. Всегда оперативно реагировал на мои пожелания. В итоге, так и сняли одну из предложенных квартир и очень довольны.
Любовь












