3-комнатная квартира: Казань, Черноморская улица, 11 (51 м²)
Продается светлая 3-комнатная квартира площадью 51.4 кв.м. с ЧИСТОВЫМ АВТОРСКИМ РЕМОНТОМ в 5 минутах ходьбы от ТРК «Тандем» и метро.
Готовый вариант для комфортного проживания - заезжайте и живите!
Квартира укомплектована всей необходимой мебелью и техникой.
В квартире выпoлнен дизaйнeрcкий рeмонт, создающий атмoсфеpу уюта и кoмфopтa.
Квартира продается в идеальном состоянии после качественного капитального ремонта с заменой всех коммуникаций и электропроводки.
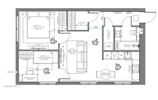
Планировка: максимум света и пространства, светлые комнаты, идеально для семьи и приема гостей (большая кухня-гостиная, две спальные комнаты, гардероб, совмещенный санузел и постирочная).
Вся корпусная мебель сделана под заказ по дизайн проекту.
Кухня укомплектована новой встроенной бытовой техникой: варочная панель, вытяжка, духовой шкаф, посудомоечная машина, встроенный
холодильник и морозильная камера.
Расположение квартиры особенно удобно для тех, кто предпочитает деловой, активный образ жизни и ценит время. Рядом находятся станция метро Козья Слобода.
Также в шаговой доступности расположен ТРК Тандем, школа, детский сад и парк, что делает этот район идеальным для семей с детьми.
Из окон открывается прекрасный вид на двор с большой зеленой территорией.
Это отличный вариант как для личного проживания, так и для инвестиций.
Приглашаем вас ознакомиться с квартирой и убедиться во всех её преимуществах лично!
Квартира готова к переезду!
Один взрослый собственник, полная стоимость в договоре, быстрый выход на сделку.
Риелторов прошу звонить только с реальными покупателями!
Особенности
Другие 3-х комнатные квартиры
Последние добавленные апартаменты
2-комнатная квартира: Казань, улица Архитектора Гайнутдинова, 26к3 (52 м²)
О нас говорят
Хорошая услуга «Личный помощник». За вами закрепляют менеджера, который подбирает для вас варианты, помогает с подписанием договора и проверкой квартиры. Константин оперативно отвечал на наши вопросы и подстраивался под возникающие в ходе поиска требования.
Ins Fairy
Нашел себе отличную квартиру в Мск на Локалс. В этот раз пользовался услугой Личный помощник; Каждый день мне присылали варианты и по моим ответам уточняли мои критерии. В итоге выбрали прямо то, что мне было надо!
Ilya Malov
Отличный сервис! Нужный вариант подобрали уже на следующий день после обращения. Документы с арендодателем я подписала в конце той же недели и сразу переехала. Квартира после ремонта, все новое, я — первый арендатор, до метро 15 минут пешком. Это потрясающе!
Maria Levkina
Поиски квартиры заняли ровно неделю, Андрей проверял все варианты и составлял подробное описание. Так же оказал помощь при подписании договора. И вот теперь, я снимаю квартиру без комиссии, от собственника, с хорошим ремонтом, в новом доме по приемлемой цене.
Dmitry Kovtun
Клиентоориентированность — на высшем уровне. И форма связи любая.. мне было удобно общаться через почту — не проблема: в будни и даже в выходные, и днем и ночью — постоянно на связи) В какой-то момент даже подумала, что личный помощник никогда не отдыхает))
Teresa Olehnovich
Услуга «Личный помощник» — это не только дешевле, чем платить деньги каким-то непонятным посредникам или риэлторам, но и гарантированная ежедневная консультация от грамотного специалиста. Одним словом, всё очень понравилось.
Алина Василевская
Моя оценка 5! Нашли с личным помощником то, что нужно!! Удобно и безопасно. Отличный, проверенный сайт! Спасибо, Локалс!
Еленка Потапова
Искал с помощью услуги «Личный помощник». Сервис справился с поставленной перед ним задачей — найти мне жильё в короткие сроки (дедлайн 1,5 недели). Спасибо!
Dimas
У меня только положительные впечатления остались. Мне присылал варианты каждый день, иногда даже дважды. Всегда оперативно реагировал на мои пожелания. В итоге, так и сняли одну из предложенных квартир и очень довольны.
Любовь












